Home > Buy > Land Adjacent Moelwyn Motors, High Street, Blaenau Ffestiniog
Land Adjacent Moelwyn Motors, High Street, Blaenau Ffestiniog
£95,000
For Sale | | 2
Key Features
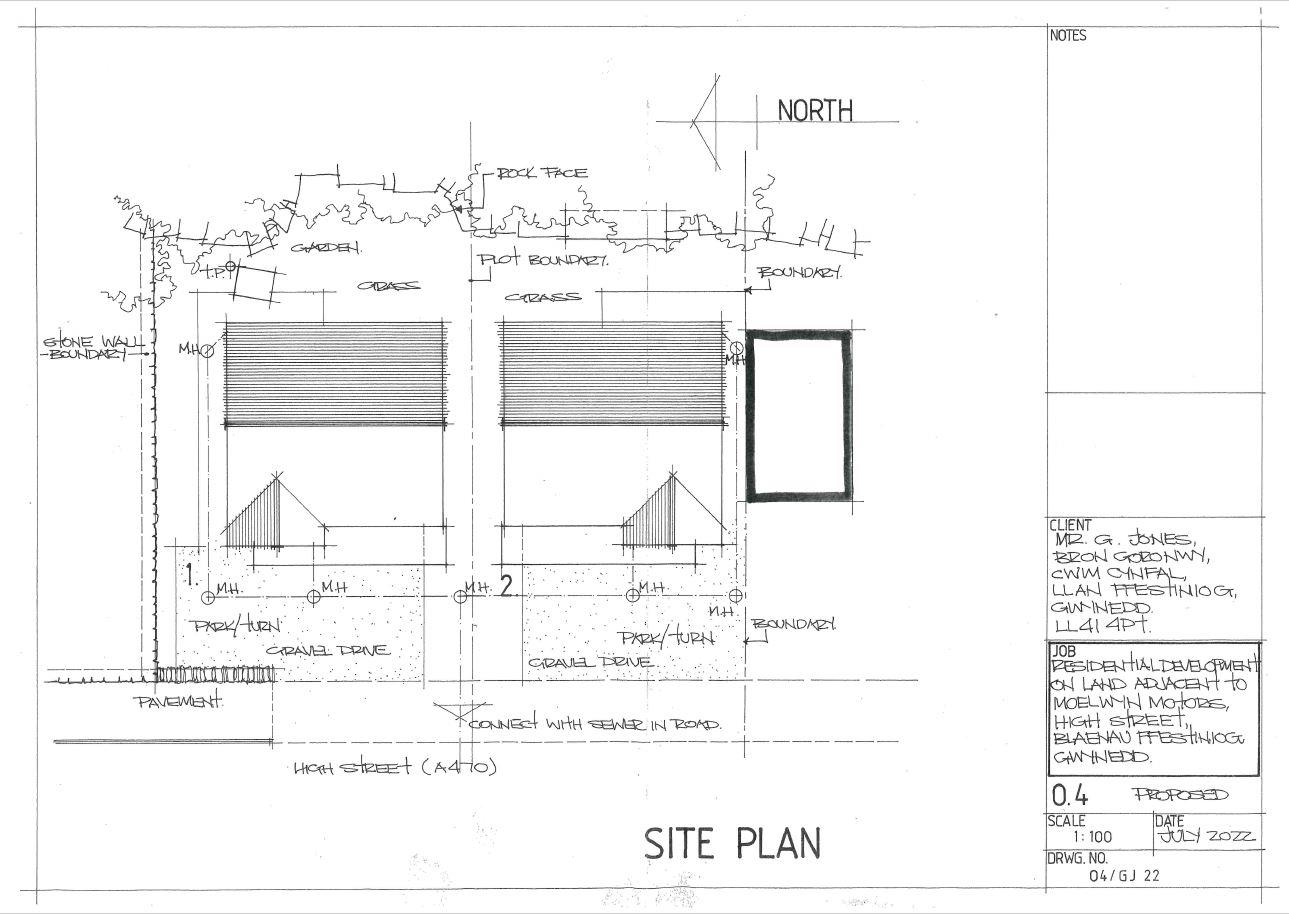
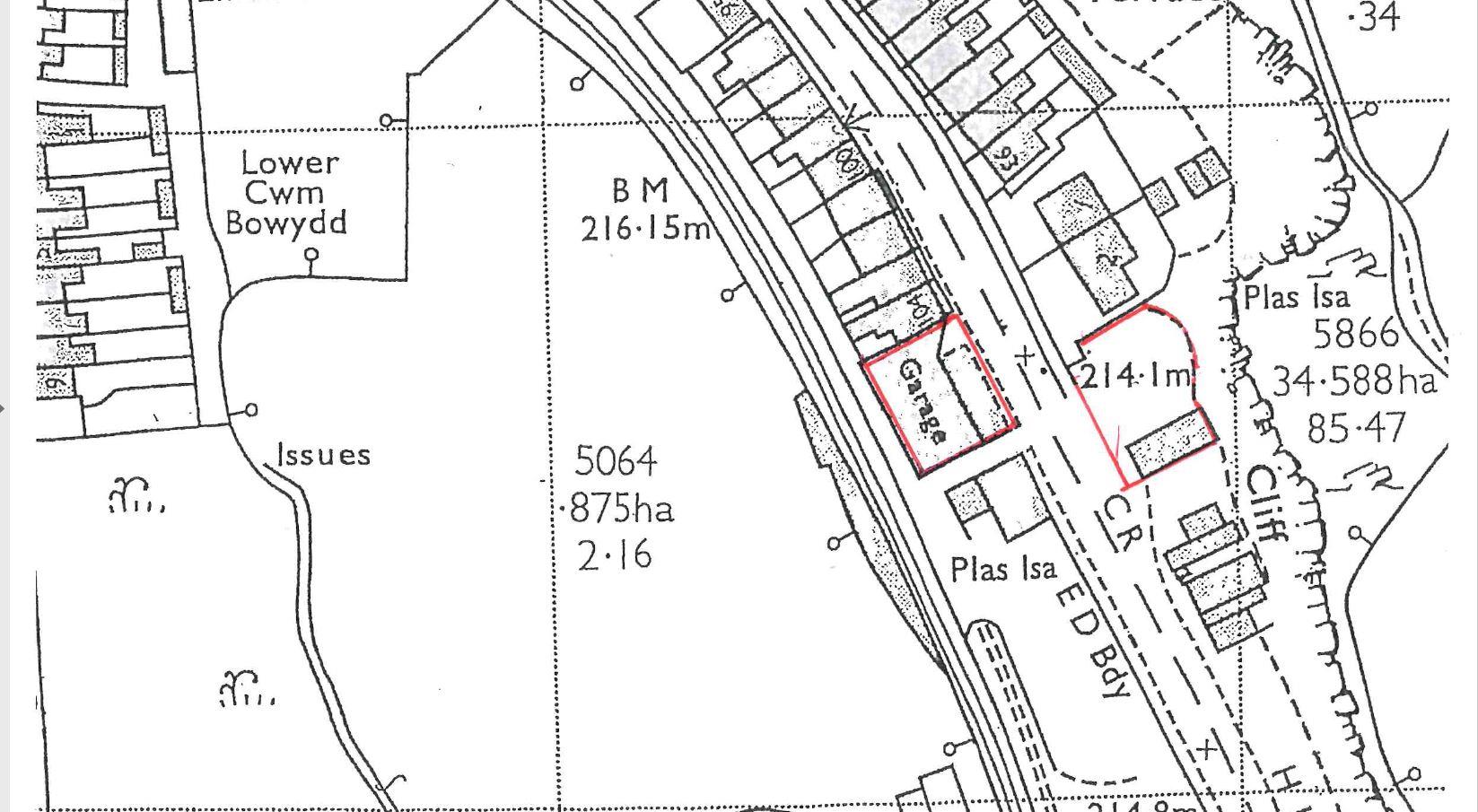
- A great opportunity to purchase a building plot located adjacent to 'Moelwyn Motors' in the town of Blaenau Ffestiniog with planning permission to built a three storey property including a garage to t
- All planning enquiries should be made to the Cyngor Gwynedd Council, Planning reference C24/0805/03/LL (01766 771 000)
Property Description
A great opportunity to purchase a building plot located adjacent to 'Moelwyn Motors' in the town of Blaenau Ffestiniog with planning permission for a residential development of 2 detached three storey dwellings including a garage to the ground floor.
All planning enquiries should be made to the Cyngor Gwynedd Council, Planning reference C24/0805/03/LL (01766 771 000)






